公布日:2023.10.27
申请日:2023.08.29
分类号:C02F9/00(2023.01)I;C02F1/461(2023.01)N;C02F1/66(2023.01)N;C02F3/12(2023.01)N;C02F3/28(2023.01)N;C02F3/30(2023.01)N;C02F101/16(2006.01)N;
C02F101/30(2006.01)N
摘要
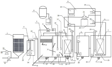
本发明提供了一种基于微电解-SRUSB-多级厌氧MBR-缺氧-好氧系统的废水处理方法,该系统包括依次连通的微电解池、中间池、SRUSB-多级厌氧MBR反应池、缺氧池、好氧MBR池;该方法包括:在微电解池中将废水的大分子有机污染物转化为小分子,再进入中间池调节废水温度、pH、COD与SO42-浓度比,调节后废水进入SRUSB-多级厌氧MBR反应池,去除废水中有机污染物与硫酸根,废水再进入缺氧池与好氧MBR池,去除废水中的有机污染物与氨氮。本发明不仅能处理高浓度废水,高效去除有机污染物,还节省曝气量和能源。

权利要求书
1.一种基于微电解-SRUSB-多级厌氧MBR-缺氧-好氧系统的废水处理方法,其特征在于,采用微电解-SRUSB-多级厌氧MBR-缺氧-好氧系统进行废水处理;所述微电解-SRUSB-多级厌氧MBR-缺氧-好氧系统包括依次连通的微电解池、中间池、SRUSB-多级厌氧MBR反应池、缺氧池和好氧MBR池;所述微电解池设有废水进口;所述中间池用于调节废水的温度、pH值以及COD与SO42-的浓度比;所述SRUSB-多级厌氧MBR反应池由隔板分隔成若干依次连通的区域,沿水流方向的第一区域内放置有上流式硫酸盐还原厌氧污泥床反应器,其余区域设置为多级厌氧MBR反应池;上流式硫酸盐还原厌氧污泥床反应器的底部与中间池连通,多级厌氧MBR反应池与缺氧池连通;所述好氧MBR池的内部设有膜组件,膜组件上设有出水管;废水处理方法,包括以下步骤:(1)将初始废水泵入微电解池,进行微电解处理,获得处理后的废水I;(2)废水I进入中间池中,调节废水I的温度、pH值和COD与SO42-浓度比,得到废水II;(3)废水II进入SRUSB-多级厌氧MBR反应池中,去除废水中的有机污染物与硫酸根,得到废水III;(4)废水III泵入缺氧池中,再进入好氧MBR池,去除废水中的有机污染物,并将废水中的氨氮转化为硝态氮,得到废水IV;(5)废水IV回流至缺氧池中,去除废水中的硝态氮,再和废水III混合得到废水V;(6)废水V进入好氧MBR池,循环步骤(4)-(5)直至废水中有机物、氨氮含量达到设计要求,通过好氧池MBR膜组件过滤出水至清水池。
2.如权利要求1所述的废水处理方法,其特征在于,所述SRUSB-多级厌氧MBR反应池内设有依次连通的上流式硫酸盐还原厌氧污泥床反应器、一级厌氧池和内部设有膜组件的二级厌氧池;所述上流式硫酸盐还原厌氧污泥床反应器与一级厌氧池之间设有底部开口的第一隔板;上流式硫酸盐还原厌氧污泥床反应器顶部设有出水口,上流式硫酸盐还原厌氧污泥床反应器的侧壁与第一隔板之间形成水流通道。
3.如权利要求2所述的废水处理方法,其特征在于,所述一级厌氧池和二级厌氧池之间设有上部开口的第二隔板;一级厌氧池顶部设有甲烷排气口;所述二级厌氧池内膜组件的出水管分别设有与缺氧池连通的出水支管,与中间池连通的回流支管,以及与反洗装置连通的反洗支管。
4.如权利要求1所述的废水处理方法,其特征在于,步骤(1)中,所述初始废水为咖啡因制药废水,COD浓度为1000~6000mg/L,SO42-浓度范围150~3000mg/L,废水中COD/SO42-浓度比2~6。
5.如权利要求1所述的废水处理方法,其特征在于,步骤(1)中,所述微电解池内铁碳体积比为1:1,废水pH值为4~5,水力停留时间为2~4h。
6.如权利要求1所述的废水处理方法,其特征在于,步骤(2)中,所述中间池的废水温度为32~35℃,pH值调节6.5~7.2,废水中COD/SO42-浓度比2~6。
7.如权利要求1所述的废水处理方法,其特征在于,步骤(3)中,SRUSB-多级厌氧MBR池水力停留时间为24~32h,SRUSB污泥浓度为4~10g/L,废水COD/SO42-浓度比在2~6,所述多级厌氧MBR反应池的废水pH值为6.5~8.5,温度为32℃,厌氧MBR池回流比100%~200%,所述厌氧池污泥质量浓度为3~8g/L。
8.如权利要求1所述的废水处理方法,其特征在于,步骤(4)中,所述缺氧池内部设有搅拌器,底部设有排泥口,缺氧池中废水的pH值为7.0~8.5,运行温度条件为室温。
9.如权利要求1所述的废水处理方法,其特征在于,步骤(5)中,所述好氧MBR池内废水pH值为6.5~8.5之间,运行温度条件为室温。
发明内容
本发明提供了一种基于微电解-SRUSB-多级厌氧MBR-缺氧-好氧系统的废水处理方法,该循环反应系统不仅可以稳定高效去除高浓度废水有机污染物,同时还可以节省曝气量和能源。
具体技术方案如下:
本发明提供了一种基于微电解-SRUSB-多级厌氧MBR-缺氧-好氧系统的废水处理方法,采用微电解-SRUSB-多级厌氧MBR-缺氧-好氧系统进行废水处理;
所述微电解-SRUSB-多级厌氧MBR-缺氧-好氧系统包括依次连通的微电解池、中间池、SRUSB-多级厌氧MBR反应池、缺氧池和好氧MBR池;
所述微电解池设有废水进口;所述中间池用于调节废水的温度、pH值以及COD与SO42-的浓度比;所述SRUSB-多级厌氧MBR反应池由隔板分隔成若干依次连通的区域,沿水流方向的第一区域内放置有上流式硫酸盐还原厌氧污泥床反应器,其余区域设置为多级厌氧MBR反应池;上流式硫酸盐还原厌氧污泥床反应器的底部与中间池连通,多级厌氧MBR反应池与缺氧池连通;所述好氧MBR池的内部设有膜组件,膜组件上设有出水管;
废水处理方法,包括以下步骤:
(1)将初始废水泵入微电解池,进行微电解处理,获得处理后的废水I;
(2)废水I进入中间池中,调节废水I的温度、pH值和COD与SO42-浓度比,得到废水II;
(3)废水II进入SRUSB-多级厌氧MBR反应池中,去除废水中的有机污染物与硫酸根,得到废水III;
(4)废水III泵入缺氧池中,再进入好氧MBR池,去除废水中的有机污染物,并将废水中的氨氮转化为硝态氮,得到废水IV;
(5)废水IV回流至缺氧池中,去除废水中的硝态氮,再和废水III混合得到废水V;
(6)废水V进入好氧MBR池,循环步骤(4)-(5)直至废水中有机物、氨氮含量达到设计要求,通过好氧池MBR膜组件过滤出水至清水池。
进一步地,SRUSB-多级厌氧MBR反应池内设有依次连通的上流式硫酸盐还原厌氧污泥床反应器、一级厌氧池和内部设有膜组件的二级厌氧池;所述上流式硫酸盐还原厌氧污泥床反应器与一级厌氧池之间设有底部开口的第一隔板;上流式硫酸盐还原厌氧污泥床反应器顶部设有出水口,上流式硫酸盐还原厌氧污泥床反应器的侧壁与第一隔板之间形成水流通道。
SRUSB全称为上流式硫酸盐还原厌氧污泥床反应器,MBR为膜生物反应器。
本发明中,初始废水首先通过水泵泵入微电解池中,微电解池内设有铁碳混合填料,混合填料是由废铁屑和活性碳按一定比例混合烧制而成,废水在微电解池中进行大分子有机污染物向小分子有机污染物的转化,经过反应后的废水进入中间池,废水在中间池中通过加药,控温,保持废水的pH与温度在一定范围内,处理后的废水泵入SRUSB中,SRUSB内接种有硫酸盐还原菌,硫酸盐还原菌能够以污水中的有机污染物为碳源和能源,将有机污染物转化为二氧化碳,同时将硫酸盐还原成硫化物,降低废水中硫酸根和有机污染物浓度,SRUSB和多级厌氧MBR反应池间设有Z字型流道,二者通过Z字型流道相连,处理后废水的经Z字型流道进入多级厌氧MBR反应池的一级厌氧池内,之后通过过水孔进入二级厌氧池,多级厌氧MBR反应池内接种有产甲烷菌,能够将废水中有机污染物降解,产生生物气,处理后的废水泵入缺氧池中,部分回流至中间池,缺氧池内反硝化细菌以污水中未分解有机物为碳源,将好氧池循环回流的硝酸根还原为氮气去除,缺氧池处理后的废水进入好氧MBR反应池中,好氧池中的好氧微生物轮虫、钟虫、硝化菌等进行有氧呼吸,将废水中的有机污染物转化为无机物,氨氮转化为硝态氮,处理后的废水部分回流至缺氧池,剩余通过好氧池MBR膜组件过滤后排出。
进一步地,初始废水为咖啡因制药废水,特征为有机物浓度高、可生化性差、含盐量大,其中COD浓度为1000~6000mg/L,SO42-浓度范围150~3000mg/L,废水中COD/SO42-最佳浓度比在2~6之间。
进一步地,微电解池内铁碳体积比为1:1,废水pH为4~5,水力停留时间为2~4h;铁碳混合填料是由废铁屑和活性碳按一定比例混合烧制而成,微电解池一侧连接有进水管,另一侧连接有出水管,进水管上连接有进水泵、气泵。
进一步地,中间池的废水温度为32~35℃,pH值为6.5~7.2,废水中COD/SO42-浓度比为2~6,中间池一侧与微电解池出水管相连,另一侧设有出水管,出水管通过进水泵与SRUSB-多级厌氧MBR反应池的SRUSB底部连接,中间池内设有加热器、潜水搅拌器和加药管,中间池还设有回流废水进水口,回流废水进水口与SRUSB-多级厌氧MBR反应池的多级厌氧MBR反应池上用于回流废水的回流管相连。
进一步地,SRUSB-多级厌氧MBR反应池水力停留时间为24~32h,SRUSB污泥浓度为4~10g/L,硫酸盐还原菌能够以污水中的有机污染物为碳源和能源,将有机污染物转化为二氧化碳,同时将硫酸盐还原成硫化物,处理后废水中COD/SO42-浓度比大于6,SRUSB-多级厌氧MBR反应池一侧与中间池出水管相连,另一侧与缺氧池相连,SRUSB上方设置有填料板。
作为优选,SRUSB-多级厌氧MBR反应池内,SRUSB通过Z字型流道与多级厌氧MBR反应池相连。
进一步地,多级厌氧MBR反应池的废水pH值为6.5~8.5,温度为32℃,多级厌氧MBR池内产甲烷菌能够将污水中的有机污染物降解,转化为生物气,产生的生物气大部分由气泵抽吸泵入SRUSB-多级厌氧MBR反应池底部循环曝气,剩余部分通入气体收集罐收集回用,厌氧MBR池回流比为100%~200%,出水pH值为7.6~8.5,厌氧污泥浓度为3~8g/L,多级厌氧MBR反应池分为一级厌氧池与二级厌氧池,二者通过过水孔相连,一级厌氧池内部连接有温度计、潜水搅拌器、加热器和加热管;二级厌氧池内设有MBR膜组件,液位计,膜组件的上方连接有MBR出水管,多级厌氧MBR反应池还设有回流废水出水口,通过回流管道与中间池回流废水进水口相连,膜组件下方设有曝气头,连接生物气循环曝气管;多级厌氧池上方设有剩余生物气收集管,与气体收集罐相连。
进一步地,缺氧池内部设有搅拌器,底部设有排泥口,定时排泥,反硝化细菌以污水中未分解的含碳有机污染物为碳源,将好氧池内通过内循环回流进来的硝酸根还原为氮气而释放,缺氧池中废水的pH值为7.0~8.5,运行温度条件为室温,缺氧池内部还设有回流废水进水口与好氧MBR池用于回流废水的回流管相连。
进一步地,好氧MBR池内废水pH值为6.5~8.5之间,运行温度条件为室温,好氧微生物轮虫、钟虫等进行有氧呼吸,将废水中的有机污染物转化为无机物,污泥中的硝化菌将氨氮转化成硝态氮,好氧池内设有MBR膜组件、曝气管、液位计、回流泵,回流泵上连接有回流管,回流管与缺氧池连通,曝气管设置于好氧MBR池底部,池内曝气管为L型,且等间距安装有若干曝气喷头。
进一步地,微电解-SRUSB-多级厌氧MBR-缺氧-好氧系统还有废水处理系统设备间,废水处理系统设备间内设有PLC控制系统,反洗水箱,所述反洗水箱连接有反洗泵,反洗泵连接有反洗管,对好氧MBR池内MBR膜组件进行定期反洗,设有pH及温度自动调控系统与厌氧池连接,将厌氧池内pH值和温度控制在所需范围内。
与现有技术相比,本发明具有以下有益效果:
本发明采用微电解池、中间池、SRUSB、多级厌氧MBR反应池、缺氧池、好氧MBR池的组合形式,不仅可以稳定高效去除高浓度废水有机污染物,同时还可以节省曝气量和能源。
(发明人:李荧;黄连芝;汪健桦;樊宇坤;马敏杰)






