水污染及其水资源危机是制约我国当前城市建设可持续发展的重要因素,建立一个比较完善的、经济高效的生活污水回用处理系统,实现污水就地资源化和无害化,具有重大的社会、经济和环保价值。生态建筑雨污水回用是上海市科委2003年科技攻关项目专项《生态建筑关键技术研究与系统集成》的一个子项目,它主要是对示范工程——上海建科院莘庄园区,包括环境实验楼在内的几栋建筑每日所排放出的污水及雨水进行回用处理。在比较目前的国内外主流的几种污水回用处理技术的基础上,作者采用了一种装置集约化程度高、处理能力强、运行方式灵活、自动控制和监测、维护管理方便的改进型SBR——ICAST (Intermittent or Cyclic Activated Sludge Technology,间歇 / 循环活性污泥技术)对生态建筑雨污水回用处理系统进行设计研究,为实施国家建设部和水利部2001年提出的“现代绿色小区40%以上的生活污水经处理后须回用”指标,以及为逐步实现小区污水零排放打下基础[1~5]。
1 污水回用处理系统设计
1.1 处理装置
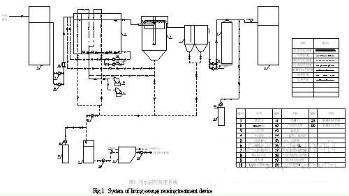
污水回用处理装置系统如图1所示,占地约20m2,污水水源为上海建科院莘庄园区包括环境实验楼在内的几栋建筑的全部建筑污水和部分幕墙测试中心的冲墙排水及雨水,设计承担处理水量为20m3/d。
该系统的污水处理主要装置包括调节池、ICAST反应池、二沉池、中间池、过滤柱及消毒池,ICAST反应池由兼氧区和好氧区(主曝气区)组成,连接管道采用PVC塑料管。主要处理装置及其材料如表1所示。
|
表1 主要处理构筑物及其材料
|
1.2 工艺流程
ICAST是作者基于SBR及其衍生的ICEAS、CAST/CASS/CASP处理技术发明的一种改进型的活性污泥技术。该专利技术采用灵活的运行方式,可根据实际需要自由选择间歇式或连续式的运行方式。

工艺流程如图2所示,生态建筑雨污水经调节池进入ICAST反应池进行生化处理。ICAST反应池可以采用间歇式和连续式两种运行方式。考虑到维护的方便,本次设计采用连续式运行(如图3所示)。连续运行为连续进水、连续出水,流入ICAST反应池的污水,在兼氧区与活性污泥充分混合后进入主曝气区进行好氧分解,自然停留一段时间后溢流入二沉池,沉淀后上清液出水至中间池,处理过程中回流主曝气区内的部分污泥至兼氧区。

这里将ICAST反应池设计分为一个较小的兼氧区和一个较大的好氧区,目的在于兼氧区不仅可有效地缓冲进水水质波动对好氧区活性污泥的冲击,而且可起到生物选择的作用,抑制丝状菌生长,控制污泥膨胀。运行过程中,兼氧区还可减轻好氧区部分的有机物负荷,使残留有机物更有效地去除。
此外,考虑到进水水质可能有较大波动,因此在原污水污染物浓度较大时可在中间池加入微量混凝剂。由中间池出水经过滤柱进行过滤,并送至清水池,消毒后的出水水质可达到中水回用标准(CJ/T 95—2000)。在处理过程中,各工艺阶段的水质监测指标及其分析方法如表2所示。
|
表2 水质监测指标及其方法
|
采用ICAST技术对生态建筑雨污水进行处理,装置一体化程度高,可以节省基建费用,连续式运行时,为保证在相对较短的停留时间内取得理想的处理效果,通过增设污泥回流系统,使回流混合液NH3-N在兼氧区内利用原水中的碳源反硝化,提高脱氮效果,处理量较大。
1.3 回用系统
将生态建筑雨污水经调节池处理后进入ICAST池生化处理并由过滤消毒后的出水(其水质达到中水回用标准)用于回用的系统,称为中水回用系统,一般由管道、水泵及喷嘴等组成。中水经回用系统可用于生态建筑楼顶平台浇灌绿化、景观水池用水、清洁道路等。
2 自动控制及监测系统
利用上述污水回用处理装置,在文献[6]的基础上,进行处理运行和监测水质的自动控制系统设计。
2.1 研究内容
a、ICAST处理流程可以通过PLC和计算机进行自动控制。包括控制进水泵、鼓风机、过滤泵、污泥回流泵等设备的启动、运行和停止及不正常运行时的报警等。
b、监控污水回用处理的整个过程,监测进出水水质的主要指标CODcr、NH3-N及浊度;ICAST生化反应池内的DO和pH值;当各工艺阶段的水质指标达不到预定目标时,可由计算机通过PLC适时调整运行参数等。
c、对污水回用处理过程中的数据进行采集和定时存贮,根据需要可查询任意时刻各种设备的故障记录及仪表的历史记录,且对历史数据进行一定的分析。
2.2 设计原则
a、以出水水质为目标监测及控制
自控系统除了监测进、出水的水质以外,应对ICAST反应池内的DO和pH值作在线监测记录,通过监测的数据确定反应池内生化反应条件与处理出水之间的关系,并以此为依据在自控界面上对ICAST反应池的运行和曝气量大小进行调整,使出水水质可达到中水回用标准。
b、实用性与经济性
自控系统采用进口和国产设备及电器结合,设计和编程考虑主要设备的自动运行,在保证可靠的前提下尽可能节约成本。通过对系统主要设备的选型,可使其造价比国内同类型系统价格有较大幅度的降低。
c、安全性与可靠性
自控系统控制部分具有故障报警及故障处理功能。从设计到设备选型和安装施工及运行维护均应尽可能确保系统的安全可靠性。
2.3自控硬件及软件
自动控制系统I/O量共计约38个点,目前可编程控制器(PLC)的种类有很多,如欧姆龙的CPM2A系列、西门子公司的S7200系列和S7300系列、A-B Rockwell公司及三菱公司的产品等。依据作者的选型经验及比较各设备的特点,西门子公司和A-B公司的中小型PLC质量好,但对本系统而言价格较贵;欧姆龙公司和三菱公司的小型PLC质量及价格优势明显,其性价比较高,且在同行业中应用较广泛;同时考虑到上位机组态软件的选用,因此选用欧姆龙公司的CPM2A系列。它具有处理速度可满足系统要求、基本指令丰富、程序易于修改、维护工作量小、网络组态容易等特点。
监控软件是在Delphi软件的基础上进行编程,该软件可使系统维护人员在极短时间掌握,其性能在国内许多企业已经得到应用检验。此外,该软件获得技术支持容易,其性能完全满足本系统需要,而价格却比其它同类型软件要低。
2.4 自控工艺
2.4.1自控工艺流程
打开计算机,进入自控检测界面,输入密码及相关原始设定值,开始运行,实现过程控制自动化。
生态建筑雨污水经提升泵从集水井输送到调节池,根据调节池中的液位信号控制开停泵的时间,调节池低位时开泵,高位时停泵。经调节池沉淀处理后出水,由进水泵输送到ICAST生化池,进水泵根据调节池和生化池的液位信号以及设备运行状态一同控制。经连续式ICAST处理后出水则自流至二沉池去掉细小颗粒,再溢流至中间池。中间池内蓄水由过滤泵输送至微滤池进行过滤,过滤后出水加消毒剂送至消毒池停留一段时间即为中水。其中过滤泵靠中间池水位控制,高位开泵、低位停泵;加药泵与过滤泵联动。
2.4.2控制系统结构及特点
依据国内外常用的自控系统形式,本系统采用PC+PLC结构,与常规智能直接数字控制仪表相比,具有投资少,寿命长,易维护且故障率低等特点。
现场控制站主要负责所有设备和过程的数据采集控制和参数调节,由PLC完成该功能且通过PLC承担事故预处理并与控制室计算机进行通讯。控制室可提供CRT显示及故障报警、部分参数设置、远程人工干预操作和数据存储等工作。控制室通常由1台工控机来完成,该管理机除含有现场操作功能外,还具备数据处理、报表打印等功能。
2.4.3自控系统组成及功能
根据地理位置及工艺功能划分,本系统由控制室和现场控制站组成,控制室与处理装置相邻,回用系统的喷泉景观池与住宅楼相连。本系统可通过计算机界面实现数据采集、画面显示、参数修改、存储及打印等功能,具体可由4大部分组成。
a、工艺流程图动态显示
流程图共5张,包括总工艺流程图、进水部分流程图、生化处理部分流程图、中间池和二沉池处理部分流程图、过滤及加药消毒部分流程图。这5张流程图、管道和设备都可以动态显示当前的工作状态。设备故障时用声光报警并可作适当处理。
b、实时监测和显示有关数据
通过扩展的模拟量模块,可将相应的仪表数据传入上位机,在上位机上实现实时监测和显示有关数据,包括进水的流量、进出水的CODcr、NH3-N指标值、出水的浊度值、以及ICAST反应池中的DO值和pH值。
c、设备控制及参数设定
可以在自动控制的状态下强行控制某台设备的开关,根据处理的要求进行多种参数的设定,同时,可根据在线监测仪器的反馈值自动调整运行参数。
d、数据采集查询及处理
根据要求对处理过程中的数据进行采集和保存,可以查询任意时间各种设备的故障记录及仪表的历史数据,提供历史趋势图功能,自动生成24小时、1个月、1年的趋势图,同时提供数据报表功能,生成班报表和日报表。
2.5 试验验证
根据以上所述,作者在上海理工大学校园内,设计加工搭建了ICAST用于18高层住宅的雨污水就地回用处理的自动控制运行和监测水质的装置系统,并经2003年6—8月3个月的调试运行,其出水水质达到中水回用标准。调试运行结果表明,该处理装置、自动控制运行及监测水质的系统是可行的,为生态建筑雨污水回用处理系统的设计提供了可靠的依据。
3 结论
a、以出水水质达到中水回用标准为目的,设计了生态建筑雨污水回用的ICAST处理装置系统。
b、采用在线监测仪器对出水水质、ICAST反应池内的运行条件以及系统设备的运行参数等进行监测,根据进水水质、水量和ICAST反应池内DO值,自动设定各工艺阶段的运行参数,可经济、安全、可靠地实现系统处理运行和水质监测的自动化。作者: 张道方 史雪霏 来源:谷腾水网


