公布日:2024.04.19
申请日:2024.02.02
分类号:C02F9/00(2023.01)I;C02F3/02(2023.01)N;C02F3/28(2023.01)N;C02F3/32(2023.01)N;C02F1/00(2023.01)N;C02F103/42(2006.01)N
摘要
本发明公开一种庭院式多功能农村污水净化及再利用装置及其方法。该装置包括化粪池、多功能污水净化设备和生态处理设备,污水净化装置包括好氧微生物反应装置、缺氧微生物反应装置、曝气装置、黑水精密过滤装置、粗效过滤装置、灰水精密过滤装置和混合提升装置;生态处理设备包括提升泵、多级滤床装置、挺水植物净化装置和出水回用种植装置;该方法使用该装置。该装置经过科学的集成化设计,通过生化-物化相结合的方法,利用生态系统中的物理、化学和生物的三重协同作用,可有效地解决因发展规划、地形地势等外界因素无法集中收集处理的农户对于污水处理的需求;该方法运行效率高,运行过程操作难度小,运行成本低廉,极具推广前景。

权利要求书
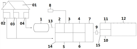
1.一种庭院式多功能农村污水净化及再利用装置,其特征在于,包括:化粪池,所述化粪池用以对黑水进行固液分离及厌氧消化反应;多功能污水净化设备,所述污水净化装置包括好氧微生物反应装置、缺氧微生物反应装置、曝气装置、黑水精密过滤装置、粗效过滤装置、灰水精密过滤装置和混合提升装置,所述好氧微生物反应装置的进水口与所述化粪池的出水口连接,所述缺氧微生物反应装置的进气口与所述曝气装置的出气口连接,所述好氧微生物反应装置、所述缺氧微生物反应装置和所述黑水精密过滤装置依次连通以净化黑水,所述粗效过滤装置和灰水精密过滤装置连通以净化灰水,所述黑水精密过滤装置和所述灰水精密过滤装置均与所述混合提升装置连通;生态处理设备,所述生态处理设备包括提升泵、多级滤床装置、挺水植物净化装置和出水回用种植装置,所述提升泵的进水口与所述混合提升装置的出水口连接,所述多级滤床装置的进水口与所述提升泵的出水口连接以净化入水,所述多级滤装置、所述挺水植物净化装置和所述出水回用种植装置依次连通以将净化后的污水就地回用;其中,所述化粪池的出水口与所述好氧微生物反应装置的进水口之间、所述缺氧微生物反应装置的进气口与所述曝气装置的出气口之间、所述混合提升装置的出水口与所述提升泵的进水口之间以及所述提升泵的出水口与所述多级滤床装置的进水口之间均设有管道以进行连通,所述化粪池、好氧微生物反应装置、所述缺氧微生物反应装置和所述黑水精密过滤装置构成黑水处理单元,所述粗效过滤装置和灰水精密过滤装置构成灰水处理单元,所述黑水处理单元和所述灰水处理单元互不连通。
2.根据权利要求1所述的庭院式多功能农村污水净化及再利用装置,其特征在于,所述好氧微生物反应装置包括好氧池、多个壳体和多个强化硝化效果的改性高分子生物填料,所述好氧池的进水口与所述化粪池的出水口连接,所述好氧池与所述缺氧微生物反应装置连通,所述壳体为中空鱼网状多孔悬浮球体,所述壳体均设于所述好氧池内,多个所述改性高分子生物填料设于单个所述壳体内。
3.根据权利要求1所述的庭院式多功能农村污水净化及再利用装置,其特征在于,所述缺氧微生物反应装置包括缺氧池、主体和改性聚氨酯填料,所述缺氧池的一端与所述好氧微生物反应装置连通,所述好氧池的另一端与所述黑水连通,所述主体为网状大孔结构,所述主体设于所述缺氧池内,所述改性聚氨酯填料耦合于所述主体内。
4.根据权利要求1所述的庭院式多功能农村污水净化及再利用装置,其特征在于,所述黑水精密过滤装置、所述粗效过滤装置和所述灰水精密过滤装置的过滤介质均为石英砂。
5.根据权利要求1所述的庭院式多功能农村污水净化及再利用装置,其特征在于,所述多级滤床装置的滤料包括卵石层和陶粒沸石混合层,所述卵石层设于所述陶粒沸石混合层的下方,所述卵石层和所述陶粒沸石混合层的单粒直径从下到上依次为16-32mm、8-16mm、4-8mm、2-4mm。
6.根据权利要求1所述的庭院式多功能农村污水净化及再利用装置,其特征在于,所述挺水植物净化装置包括挺水植物净化池、复合土层和挺水植物,所述挺水植物净化池与所述多级滤床装置连通,所述复合土层填设于所述挺水植物净化池内,所述挺水植物种植于所述复合土层上。
7.根据权利要求1所述的庭院式多功能农村污水净化及再利用装置,其特征在于,所述出水回用种植装置包括出水回用种植池、本地土和植物,所述出水回用种植池与所述挺水植物净化装置连通,所述本地土层填设于所述出水回用种植池内,所述本地土层的左端与挺水植物净化装置的右端连接,所述植物种植于所述本地土层上。
8.根据权利要求1所述的庭院式多功能农村污水净化及再利用装置,其特征在于,所述曝气设备为变频调速风机。
9.根据权利要求1所述的庭院式多功能农村污水净化及再利用装置,其特征在于,还包括就地控制柜,所述就地控制柜与所述曝气设备以及所述提升泵均连接以进行就地控制。
10.一种庭院式多功能农村污水净化及再利用方法,利用权利要求1-9任一项所述的庭院式多功能农村污水净化及再利用装置,其特征在于,包括:步骤1:农户产生的黑水通过管道进入所述化粪池,黑水在所述化粪池内进行固液分离及厌氧消化反应;黑水经过所述化粪池进入所述好氧微生物反应装置,利用所述好氧微生物反应装置内的微生物将水中的氨高效氧化为硝态氮;黑水经过所述好氧微生物反应装置后再通过所述缺氧微生物反应装置,利用所述缺氧微生物反应装置内微生物在缺氧状态下还原硝态氮,释放出分子态氮或一氧化二氮;黑水经过所述缺氧微生物反应装置后再通过所述黑水精密过滤装置,对黑水中的悬浮物进行截留;步骤2:农户产生的灰水通过管道进入所述粗效过滤装置,完成对灰水进行粗过滤的过程;灰水经过所述粗效过滤装置后再通过所述灰水精密过滤装置,完成对灰水的精密过滤的过程;步骤3:经过所述黑水精密过滤装置的黑水进入所述混合提升装置;经过所述灰水精密过滤装置的灰水进入所述混合提升装置;在所述混合提升装置内混合后的黑水和灰水进入所述多级滤床装置,在所述多级滤床装置内完成多级过滤的过程。步骤4:黑水和灰水经过所述多级滤床装置后进入所述挺水植物净化装置,通过生化-物化相结合的方法,利用生态系统中的物理、化学和生物的三重协同作用,通过过滤、吸附、沉淀、离子交换、植物吸收和微生物分解来实现对污染水体的高效净化;已净化的污水经过所述挺水植物净化装置进入所述出水回用种植装置,利用植物种植,完成污水处理后就地回用的过程。
发明内容
为解决上述背景技术中提到的至少一个问题,本发明的目的在于,提供一种庭院式多功能农村污水净化及再利用装置及其方法。
本发明通过如下技术方案实现:
一种庭院式多功能农村污水净化及再利用装置,包括:
化粪池,所述化粪池用以对黑水进行固液分离及厌氧消化反应;
多功能污水净化设备,所述污水净化装置包括好氧微生物反应装置、缺氧微生物反应装置、曝气装置、黑水精密过滤装置、粗效过滤装置、灰水精密过滤装置和混合提升装置,所述好氧微生物反应装置的进水口与所述化粪池的出水口连接,所述缺氧微生物反应装置的进气口与所述曝气装置的出气口连接,所述好氧微生物反应装置、所述缺氧微生物反应装置和所述黑水精密过滤装置依次连通以净化黑水,所述粗效过滤装置和灰水精密过滤装置连通以净化灰水,所述黑水精密过滤装置和所述灰水精密过滤装置均与所述混合提升装置连通;
生态处理设备,所述生态处理设备包括提升泵、多级滤床装置、挺水植物净化装置和出水回用种植装置,所述提升泵的进水口与所述混合提升装置的出水口连接,所述多级滤床装置的进水口与所述提升泵的出水口连接以净化入水,所述多级滤装置、所述挺水植物净化装置和所述出水回用种植装置依次连通以将净化后的污水就地回用;
其中,所述化粪池的出水口与所述好氧微生物反应装置的进水口之间、所述缺氧微生物反应装置的进气口与所述曝气装置的出气口之间、所述混合提升装置的出水口与所述提升泵的进水口之间以及所述提升泵的出水口与所述多级滤床装置的进水口之间均设有管道以进行连通,所述化粪池、好氧微生物反应装置、所述缺氧微生物反应装置和所述黑水精密过滤装置构成黑水处理单元,所述粗效过滤装置和灰水精密过滤装置构成灰水处理单元,所述黑水处理单元和所述灰水处理单元互不连通。
可选的,所述好氧微生物反应装置包括好氧池、多个壳体和多个强化硝化效果的改性高分子生物填料,所述好氧池的进水口与所述化粪池的出水口连接,所述好氧池与所述缺氧微生物反应装置连通,所述壳体为中空鱼网状多孔悬浮球体,所述壳体均设于所述好氧池内,多个所述改性高分子生物填料设于单个所述壳体内。
可选的,所述缺氧微生物反应装置包括缺氧池、主体和改性聚氨酯填料,所述缺氧池的一端与所述好氧微生物反应装置连通,所述好氧池的另一端与所述黑水精密过滤装置连通,所述主体为网状大孔结构,所述主体设于所述缺氧池内,所述改性聚氨酯填料耦合于所述主体内。
可选的,所述黑水精密过滤装置、所述粗效过滤装置和所述灰水精密过滤装置的过滤介质均为石英砂。
可选的,所述多级滤床装置的滤料包括卵石层和陶粒沸石混合层,所述卵石层设于所述陶粒沸石混合层的下方,所述卵石层和所述陶粒沸石混合层的单粒直径从下到上依次为16-32mm、8-16mm、4-8mm、2-4mm。
可选的,所述挺水植物净化装置包括挺水植物净化池、复合土层和挺水植物,所述挺水植物净化池与所述多级滤床装置连通,所述复合土层填设于所述挺水植物净化池内,所述挺水植物种植于所述复合土层上。
可选的,所述出水回用种植装置包括出水回用种植池、本地土和植物,所述出水回用种植池与所述挺水植物净化装置连通,所述本地土层填设于所述出水回用种植池内,所述本地土层的左端与挺水植物净化装置的右端连接,所述植物种植于所述本地土层上。
可选的,所述曝气设备为变频调速风机。
可选的,还包括就地控制柜,所述就地控制柜与所述曝气设备以及所述提升泵均连接以进行就地控制。
一种庭院式多功能农村污水净化及再利用方法,利用上述任一项实施例提供的庭院式多功能农村污水净化及再利用装置,包括:
步骤1:农户产生的黑水通过管道进入所述化粪池,黑水在所述化粪池内进行固液分离及厌氧消化反应;黑水经过所述化粪池进入所述好氧微生物反应装置,利用所述好氧微生物反应装置内的微生物将水中的氨高效氧化为硝态氮;黑水经过所述好氧微生物反应装置后再通过所述缺氧微生物反应装置,利用所述缺氧微生物反应装置内微生物在缺氧状态下还原硝态氮,释放出分子态氮或一氧化二氮;黑水经过所述缺氧微生物反应装置后再通过所述黑水精密过滤装置,对黑水中的悬浮物进行截留;
步骤2:农户产生的灰水通过管道进入所述粗效过滤装置,完成对灰水进行粗过滤的过程;灰水经过所述粗效过滤装置后再通过所述灰水精密过滤装置,完成对灰水的精密过滤的过程;
步骤3:经过所述黑水精密过滤装置的黑水进入所述混合提升装置;经过所述灰水精密过滤装置的灰水进入所述混合提升装置;在所述混合提升装置内混合后的黑水和灰水进入所述多级滤床装置,在所述多级滤床装置内完成多级过滤的过程。
步骤4:黑水和灰水经过所述多级滤床装置后进入所述挺水植物净化装置,通过生化-物化相结合的方法,利用生态系统中的物理、化学和生物的三重协同作用,通过过滤、吸附、沉淀、离子交换、植物吸收和微生物分解来实现对污染水体的高效净化;已净化的污水经过所述挺水植物净化装置进入所述出水回用种植装置,利用植物种植,完成污水处理后就地回用的过程。
本发明的有益效果是:本发明的庭院式多功能农村污水净化及再利用装置及其方法,解决现有技术中因地形地势等自然条件无法将污水收集处理、周边道路不宜大规模开挖无法就地收集等技术问题,实现有益效果:该庭院式多功能农村污水净化及再利用装置经过科学的集成化设计,通过生化-物化相结合的方法,利用生态系统中的物理、化学和生物的三重协同作用,通过过滤、吸附、沉淀、离子交换、植物吸收和微生物分解来实现对污染水体的高效净化,可有效地解决因发展规划、地形地势等外界因素无法集中收集处理的农户对于污水处理的需求;该农村污水净化及再利用方法运行效率高,运行过程操作难度小,运行成本低廉,极具推广前景。
(发明人:唐朕;黄晓慧;张殿权;安文斌;孙旭;秦明峰;腾胜平;张金强;王乃舜;冯晶晶)






