公布日:2024.04.09
申请日:2024.02.21
分类号:C02F3/30(2023.01)I;C02F9/00(2023.01)I;C02F1/00(2023.01)N;C02F1/50(2023.01)N;C02F1/58(2023.01)N;C02F101/30(2006.01)N;C02F101/16(2006.01)N;
C02F101/10(2006.01)N
摘要
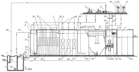
本发明给出一种MABR与固定床填料水解酸化工艺的组合污水处理装置,该污水处理装置包括调节池和MABR膜曝气生物反应器,调节池和MABR膜曝气生物反应器之间还设有固定床填料水解酸化池:固定床填料水解酸化池包括预处理池和分离过渡池;预处理池与调节池连通。分离过渡池内至少设有一个布水器,且布水器的进水口与预处理池连通,布水器出水口位于靠近分离过渡池底部处,分离过渡池内还设有多个固定床微生物载体平板填料,布水器出水能流经固定床微生物载体平板填料溢流至MABR膜曝气生物反应器。该组合污水处理装置能够改善水解酸化池污泥沉降性能,减少出水带泥情况,同时能够部分去除废水中的COD并分解水中的大分子有机物,降低了废水中COD含量和大分子有机物的含量。

权利要求书
1.MABR与固定床填料水解酸化工艺的组合污水处理装置,包括:调节池(2)和MABR膜曝气生物反应器(4),其特征在于,所述调节池(2)和MABR膜曝气生物反应器(4)之间还设有固定床填料水解酸化池(3):所述固定床填料水解酸化池(3)包括预处理池(31)和分离过渡池;所述预处理池(31)与调节池(2)连通;所述分离过渡池内至少设有一个布水器(301),且布水器(301)的进水口与预处理池(31)连通;布水器(301)出水口位于靠近分离过渡池底部处,分离过渡池内还设有多个用于去除水中部分COD并将水中大分子有机物分解为小分子有机物的固定床微生物载体平板填料(302),布水器(301)出水能流经固定床微生物载体平板填料(302)溢流至MABR膜曝气生物反应器(4)。
2.如权利要求1所述的MABR与固定床填料水解酸化工艺的组合污水处理装置,其特征在于,所述分离过渡池内设有支撑架,多个所述固定床微生物载体平板填料(302)等间距依次倾斜设在支撑架上,并与支撑架连接,用于使各固定床微生物载体平板填料(302)与分离过渡池过中心点的水平线之间存在倾斜夹角。
3.如权利要求2所述的MABR与固定床填料水解酸化工艺的组合污水处理装置,其特征在于,所述倾斜夹角为60°。
4.如权利要求1所述的MABR与固定床填料水解酸化工艺的组合污水处理装置,其特征在于,所述分离过渡池的底部还设有定期排泥机构,所述定期排泥机包括多个排泥管(303),所述排泥管(303)为穿孔花管,且多个排泥管(303)均匀布设于分离过渡池的底部,且多个排泥管(303)均连通有第一排泥总管(802),所述第一排泥总管(802)上设有定期排泥的阀门(804),所述第一排泥总管(802)与污泥储池(8)连通。
5.如权利要求1所述的MABR与固定床填料水解酸化工艺的组合污水处理装置,其特征在于,所述MABR膜曝气生物反应器(4)包括MABR膜曝气生物反应池(401)和MABR膜处理系统(402),所述MABR膜处理系统(402)设在所述MABR膜曝气生物反应池(401)内,且所述MABR膜处理系统(402)连通有供气机构(11),所述分离过渡池上设有的第一出水堰(305),所述第一出水堰(305)与所述MABR膜曝气生物反应池(401)的入口连通,所述MABR膜曝气生物反应池(401)的出口处设有第二出水堰(405),所述第二出水堰(405)上连接有第一弯管(406)。
6.如权利要求5所述的MABR与固定床填料水解酸化工艺的组合污水处理装置,其特征在于,所述MABR膜处理系统(402)包括MABR膜供气单元(4021)和多个MABR膜组件(4022),多个所述MABR膜组件(4022)等间距设置在所述MABR膜曝气生物反应池(401)内,各MABR膜组件(4022)包括膜架(40221)和多个膜元件(40222),多个所述膜元件(40222)沿所述膜架(40221)的竖向中心线对称设在膜架(40221)内,所述MABR膜供气单元(4021)与供气机构(11)连通,且所述MABR膜供气单元(4021)还与多个所述膜元件(40222)连通,用于将MABR膜供气单元(4021)所输送的气体送入各膜元件(40222)内部,从而使得各膜元件(40222)从内到外形成好氧缺氧的分层结构。
7.如权利要求6所述的MABR与固定床填料水解酸化工艺的组合污水处理装置,其特征在于,所述膜架(40221)上还设有膜清洗布气主管(4023)和多个膜清洗布气管(4024),所述膜清洗布气主管(4023)设于对称设置的两个膜元件(40222)之间,各膜清洗布气管(4024)与膜清洗布气主管(4023)连通,所述膜清洗布气主管(4023)与风机连通。
8.如权利要求5所述的MABR与固定床填料水解酸化工艺的组合污水处理装置,其特征在于,还包括二沉池(5)、纤维转盘滤池(6)和消毒池(7),所述二沉池(5)包括中心筒(504),所述中心筒(504)通过第一弯管(406)与所述第二出水堰(405)连通,所述纤维转盘滤池(6)包括进水区(61)、过滤区(62)和出水区(63),所述进水区设有溢流堰(611),且进水区(61)与过滤区(62)连通,所述进水区(62)通过第二弯管(502)与所述二沉池(5)内部设有的第三出水堰(501)连通,所述二沉池(5)上还连接有第一加药器(9),所述过滤区(62)内设有纤维转盘(621),所述过滤区(62)和出水区(63)连通,所述出水区(63)连接有出水管,所述消毒池(7)内设有竖向输送管(701),所述出水管与竖向输送管(701)连通,所述竖向输送管(701)上还连接有第二加药器(10),所述消毒池(7)上连接有排水管。
9.如权利要求8所述的MABR与固定床填料水解酸化工艺的组合污水处理装置,其特征在于,所述纤维转盘(621)连接有排泥与反洗排水管,排泥与反洗排水管连接有排泥泵(12),所述排泥泵(12)与调节池(2)连通,所述调节池(2)连接有格栅井(1),所述格栅井(1)与污水进水管连通。
10.如权利要求8所述的MABR与固定床填料水解酸化工艺的组合污水处理装置,其特征在于,所述二沉池(5)底部通过排泥泵(506)上连接有排泥输送管(505),所述排泥输送管(505)分别连接有第三输送管(313)和第二排泥总管(801),所述第三输送管(313)与预处理池(31)连通,所述第二排泥总管(801)和污泥储池(8)连通。
发明内容
本发明的目的是克服现有技术中存在的缺陷,提供一种MABR与固定床填料水解酸化工艺的组合污水处理装置,该组合污水处理装置能够沉降废水,降低了废水的含泥量,同时能够部分去除废水中的COD,还能将废水中的大分子有机物进行分解,降低了废水中COD的含量以及大分子有机物的含量。
本发明提供了MABR与固定床填料水解酸化工艺的组合污水处理装置,包括:调节池和MABR膜曝气生物反应器,其特征在于,所述调节池和MABR膜曝气生物反应器之间还设有固定床填料水解酸化池:
所述固定床填料水解酸化池包括预处理池和分离过渡池;所述预处理池与调节池连通;所述分离过渡池内至少设有一个布水器,且布水器的进水口与预处理池连通;布水器出水口位于靠近分离过渡池底部处,分离过渡池内还设有多个用于去除水中部分COD并将水中大分子有机物分解为小分子有机物的固定床微生物载体平板填料,布水器出水能流经固定床微生物载体平板填料溢流至MABR膜曝气生物反应器。
优选地,所述分离过渡池内设有支撑架,多个所述固定床微生物载体平板填料等间距依次倾斜设在支撑架上,并与支撑架连接,用于使各固定床微生物载体平板填料与分离过渡池过中心点的水平线之间存在倾斜夹角。
优选地,所述倾斜夹角为60°。
优选地,所述分离过渡池的底部还设有定期排泥机构,所述定期排泥机包括多个排泥管,所述排泥管为穿孔花管,且多个排泥管均匀布设于分离过渡池的底部,且多个排泥管均连通有第一排泥总管,所述第一排泥总管上设有定期排泥的阀门,所述第一排泥总管与污泥储池连通。
优选地,所述MABR膜曝气生物反应器包括MABR膜曝气生物反应池和MABR膜处理系统,所述MABR膜处理系统设在所述MABR膜曝气生物反应池内,且所述MABR膜处理系统连通有供气机构,所述分离过渡池上设有的第一出水堰,所述第一出水堰与所述MABR膜曝气生物反应池的入口连通,所述MABR膜曝气生物反应池的出口处设有第二出水堰,所述第二出水堰上连接有第一弯管。
优选地,所述MABR膜处理系统包括MABR膜供气单元和多个MABR膜组件,多个所述MABR膜组件等间距设置在所述MABR膜曝气生物反应池内,各MABR膜组件包括膜架和多个膜元件,多个所述膜元件沿所述膜架的竖向中心线对称设在膜架内,所述MABR膜供气单元与供气机构连通,且所述MABR膜供气单元还与多个所述膜元件连通,用于将MABR膜供气单元所输送的气体送入各膜元件内部,从而使得各膜元件从内到外形成好氧缺氧的分层结构。
优选地,所述膜架上还设有膜清洗布气主管和多个膜清洗布气管,所述膜清洗布气主管设于对称设置的两个膜元件之间,各膜清洗布气管与膜清洗布气主管连通,所述膜清洗布气主管与风机连通。
优选地,还包括二沉池、纤维转盘滤池和消毒池,所述二沉池包括中心筒,所述中心筒通过第一弯管与所述第二出水堰连通,所述纤维转盘滤池包括进水区、过滤区和出水区,所述进水区设有溢流堰,且进水区与过滤区连通,所述进水区通过第二弯管与所述二沉池内部设有的第三出水堰连通,所述二沉池上还连接有第一加药器,所述过滤区内设有纤维转盘,所述过滤区和出水区连通,所述出水区连接有出水管,所述消毒池内设有竖向输送管,所述出水管与竖向输送管连通,所述竖向输送管上还连接有第二加药器,所述消毒池上连接有排水管。
优选地,所述纤维转盘连接有排泥与反洗排水管,排泥与反洗排水管连接有排泥泵,所述排泥泵与调节池连通,所述调节池连接有格栅井,所述格栅井与污水进水管连通。
优选地,所述二沉池底部通过排泥泵上连接有排泥输送管,所述排泥输送管分别连接有第三输送管和第二排泥总管,所述第三输送管与预处理池连通,所述第二排泥总管和污泥储池连通。
与现有技术相比,本发明的有益效果是:
本发明解决了送入MABR膜曝气生物反应器内的废水存在泥沙含量高、COD含量高以及大分子有机物含量高的问题。具体的处理如下:通过设置布水器能够将废水送入分离过渡池底部,使分离过渡区保持一定的上升流速,保证池内的污泥处于悬浮状态,且废水自下而上流动,并流经多个固定床微生物载体平板填料,经多个固定床微生物载体平板填料拦截,降低了进入MABR膜曝气生物反应器进水口内废水的污泥含量,同时在分离过渡池内设置固定床微生物载体平板填料,使得沉降污泥后的废水经过固定床微生物载体平板填料后,废水与固定床微生物载体平板填料发生反应,降低了废水中COD的含量以及大分子有机物的含量,从而处理后的废水再次送入MABR膜曝气生物反应器内,提高了MABR膜曝气生物反应器的供氧效率以及氨氮、总氮的去除率。
同时MABR膜曝气生物反应器的特有结构及无泡供氧提高了MABR膜曝气生物反应器的抗冲击负荷能力,在节能减碳的同时缩短了处理流程,进而使得MABR膜曝气生物反应器上具有一定厚度的生物膜,保证了稳定达标运行的处理能力,同时节约了碳源,缩短了工艺流程。
(发明人:张淼;马春红;辛勤)






