公布日:2024.04.09
申请日:2024.01.25
分类号:C02F3/12(2023.01)I;C02F3/00(2023.01)I
摘要
本发明涉及污水生物处理技术领域,尤其是一种用于生活污水处理的一体化颗粒污泥反应系统,包括调节池、颗粒污泥反应器以及微生物淘洗系统,其中所述调节池通过进水管与所述颗粒污泥反应器的反应池连接,所述颗粒污泥反应器为一序批式的恒液位水处理设备,所述颗粒污泥反应器与所述微生物淘洗系统连接。本发明的优点是:解决了目前国内颗粒污泥反应器污泥淤积的问题,实现了选择压的连续变化,实现了进水流量与选择压的关联分离,使其更具有灵活性和抗冲击能力。

权利要求书
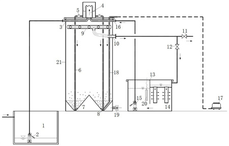
1.一种用于生活污水处理的一体化颗粒污泥反应系统,其特征在于:包括调节池、颗粒污泥反应器以及微生物淘洗系统,其中所述调节池通过进水管与所述颗粒污泥反应器的反应池连接,所述颗粒污泥反应器为一序批式的恒液位水处理设备,所述颗粒污泥反应器与所述微生物淘洗系统连接。
2.根据权利要求1所述的一种用于生活污水处理的一体化颗粒污泥反应系统,其特征在于:所述反应池的顶部设置有一配水槽,所述配水槽具有若干分格,若干分格分别通过配水管道与设置在所述反应池底部的集泥斗连通,所述配水槽的下方设置有一穿孔排放管,用于将所述反应池池内处理好的水排放至池外,所述反应池的中部为泥水混合反应区。
3.根据权利要求2所述的一种用于生活污水处理的一体化颗粒污泥反应系统,其特征在于:所述集泥斗为环形且沿高度方向下窄上宽。
4.根据权利要求2或3所述的一种用于生活污水处理的一体化颗粒污泥反应系统,其特征在于:所述集泥斗内设有环形穿孔曝气管,所述环形穿孔曝气管与一供气设备连接。
5.根据权利要求1所述的一种用于生活污水处理的一体化颗粒污泥反应系统,其特征在于:所述微生物淘洗系统包括过滤单元和菌落控制单元,所述过滤单元与所述反应池的穿孔排放管通过管路连接,所述菌落控制单元与所述过滤单元连通,所述菌落控制单元通过循环进水管与所述反应池的配水槽连通。
6.根据权利要求5所述的一种用于生活污水处理的一体化颗粒污泥反应系统,其特征在于:所述菌落控制单元内设置有多种不同波长的紫外灯管。
发明内容
本发明的目的是根据上述现有技术的不足,提供了一种用于生活污水处理的一体化颗粒污泥反应系统,通过颗粒污泥反应器底部泥斗、曝气及配水耦合的方式解决了颗粒污泥淤积的问题;将出水的回流进行梯度控制,实现了选择压的连续变化,而不是单纯靠原水的进水顶托来实现生物选择;通过将运行模式设置成序批式,其抗冲击性和负荷的波动性能力也大大提升。
本发明目的实现由以下技术方案完成:一种用于生活污水处理的一体化颗粒污泥反应系统,其特征在于:包括调节池、颗粒污泥反应器以及微生物淘洗系统,其中所述调节池通过进水管与所述颗粒污泥反应器的反应池连接,所述颗粒污泥反应器为一序批式的恒液位水处理设备,所述颗粒污泥反应器与所述微生物淘洗系统连接。
所述反应池的顶部设置有一配水槽,所述配水槽具有若干分格,若干分格分别通过配水管道与设置在所述反应池底部的集泥斗连通,所述配水槽的下方设置有一穿孔排放管,用于将所述反应池池内处理好的水排放至池外,所述反应池的中部为泥水混合反应区。
所述集泥斗为环形且沿高度方向下窄上宽。
所述集泥斗内设有环形穿孔曝气管,所述环形穿孔曝气管与一供气设备连接。
所述微生物淘洗系统包括过滤单元和菌落控制单元,所述过滤单元与所述反应池的穿孔排放管通过管路连接,所述菌落控制单元与所述过滤单元连通,所述菌落控制单元通过循环进水管与所述反应池的配水槽连通。
所述菌落控制单元内设置有多种不同波长的紫外灯管。
本发明的优点是:解决了目前国内颗粒污泥反应器污泥淤积的问题,实现了选择压的连续变化,实现了进水流量与选择压的关联分离,使其更具有灵活性和抗冲击能力。
(发明人:柳林齐;赵国强;徐伟忠;孙炯;李凯英;谢丽;庞维海;闵柏林)






