申请日2015.08.20
公开(公告)日2016.02.17
IPC分类号C02F11/12; C02F11/18
摘要
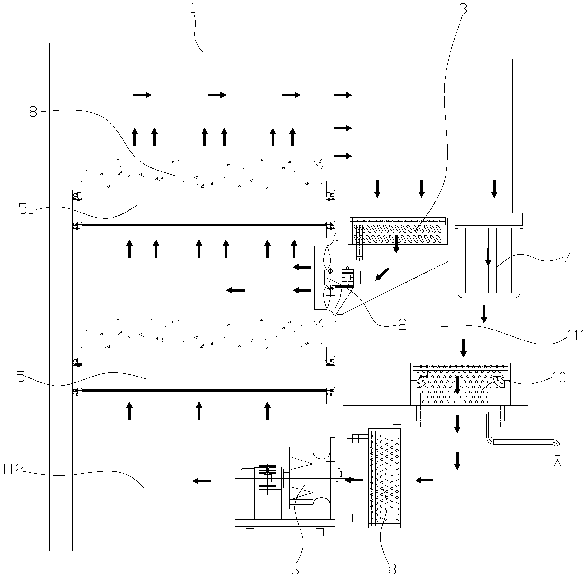
本实用新型公开一种污泥低温余热干化单元,包括框架,所述框架设置有污泥干燥区和功能区,所述污泥干燥区和功能区之间设置有挡板相隔,在所述污泥干燥区与功能区之间设置有送风机和回风口,在所述功能区中安装一级加热器、二级加热器和冷却器,所述一级加热器、二级加热器分别设置有加热水进口和加热水出口,所述冷却器设置冷却水进口和冷却水出口;空气通过冷却器进行热交换,然后通过二级加热器进行加热后通过送风机进入污泥干燥区。本实用新型有如下优点:节能性好,安全性高,环保性好,无尾气排放,无需臭气处理系统;整个干化过程可都在密闭环境条件下进行,不会有气体排到外界环境中,不会造成二次环境污染。
权利要求书
1.污泥低温余热干化单元,其特征在于,包括框架,所述框架设置有污泥干燥区和功能区,所述污泥干燥区和功能区之间设置有挡板相隔,在所述污泥干燥区与功能区之间设置有送风机和回风口,在所述功能区中安装一级加热器、二级加热器和冷却器,所述一级加热器、二级加热器分别设置有加热水进口和加热水出口,所述冷却器设置冷却水进口和冷却水出口;空气通过冷却器进行热交换,然后通过二级加热器进行加热后通过送风机进入污泥干燥区。
2.根据权利要求1所述的污泥低温余热干化单元,其特征在于,所述回风口的回风一部分通过一级加热器后经循环风机进入污泥干燥区。
3.根据权利要求2所述的污泥低温余热干化单元,其特征在于,所述功能区中还安装有回热器,空气通过回热器热侧后通过冷却器进行热交换,然后通过回热器冷侧后与二级加热器进行加热,然后通过送风机进入污泥干燥区用于干燥。
4.根据权利要求3所述的污泥低温余热干化单元,其特征在于,所述二级加热器的出风口与冷却器之间设置隔板相隔。
5.根据权利要求4所述的污泥低温余热干化单元,其特征在于,空气入口处设置有过滤网。
6.根据权利要求5所述的污泥低温余热干化单元,其特征在于,所述冷却器下设置冷凝水收集管,所述冷凝水收集管上设置冷凝水排放口。
7.根据权利要求3所述的污泥低温余热干化单元,其特征在于,所述一级加热器位于框架上端,所述二级加热器、回热器、冷却器分别设置两个,两个所述二级加热器分别设置于框架两侧,两个所述冷却器设置于框架中部,两个回热器分靠近安装于二级加热器内侧。
8.根据权利要求7所述的污泥低温余热干化单元,其特征在于,所述回热器为板翅式回热器。
9.根据权利要求1所述的污泥低温余热干化单元,其特征在于,所述污泥干燥区的底部预留有混风区。
10.根据权利要求9所述的污泥低温余热干化单元,其特征在于,所述污泥干燥区内设置有均风板。
说明书
污泥低温余热干化单元
【技术领域】
本实用新型涉及干燥设备领域,特别是一种污泥低温余热干化单元。
【背景技术】
目前,常用的干化系统主要以直接或间接加热方式进行,且是以干燥温度大于150℃的干化工艺为主。现有干化机采用石化能源(燃煤、燃油、燃气)作为燃料进行加热。
总的来说,现有污泥干化机存在以下不足:
(1)能耗高,污泥干化是能量净消耗过程,采用蒸汽或导热油作为热源,需要消耗大量的石化能源(燃煤、燃油、燃气、电热等),能耗费用通常占污泥处理总费用的80%以上;现有污泥干化设备采用加热排湿方式,能源利用率低;每蒸发一吨水消耗蒸汽量约1.5吨,另消耗电量约70kw.h;
(2)现有高温烟气余热干化存在干化温度高、粉尘量大、排放尾气难处理;
(3)存在安全风险,采用100℃以上干化温度存在安全风险,污泥干化为避免爆炸通常需要采用加氮方式降低含氧量;
(4)不环保,排放大量臭气,需建造负责的尾气处理系统;干化车间工作环境差;干化过程供热热源采用锅炉,也排放大量的尾气,存在二次污泥问题。
(5)干化过程复杂,存在污泥黏糊区,装置磨损件多,维护量大。
【实用新型内容】
本实用新型的目的在于针对以上所述现有技术存在的不足,提供一种可以进行模块化组装,节能环保,安全可靠且效率高的污泥低温余热干化单元。
为达到上述目的,本实用新型的技术方案是:污泥低温余热干化单元,包括框架,所述框架设置有污泥干燥区和功能区,所述污泥干燥区和功能区之间设置有挡板相隔,在所述污泥干燥区与功能区之间设置有送风机和回风口,在所述功能区中安装一级加热器、二级加热器和冷却器,所述一级加热器、二级加热器分别设置有加热水进口和加热水出口,所述冷却器设置冷却水进口和冷却水出口;空气通过冷却器进行热交换,然后通过二级加热器进行加热后通过送风机进入污泥干燥区。
所述回风口的回风一部分通过一级加热器后经循环风机进入污泥干燥区。
优选的,所述功能区中还安装有回热器,空气通过回热器热侧后通过冷却器进行热交换,然后通过回热器冷侧后与二级加热器进行加热,然后通过送风机进入污泥干燥区用于干燥。
所述二级加热器的出风口与冷却器之间设置隔板相隔,用于进行绝热,以减少热量损失。
空气入口处设置有过滤网,用于对空气进行过滤,减少粉尘等进入,延长使用寿命。
所述冷却器下设置冷凝水收集管,所述冷凝水收集管上设置冷凝水排放口。
所述一级加热器位于框架上端,所述二级加热器、回热器、冷却器分别设置两个,两个所述二级加热器分别设置于框架两侧,两个所述冷却器设置于框架中部,两个回热器分靠近安装于二级加热器内侧。
所述回热器为板翅式回热器。
所述污泥干燥区的底部预留有混风区,用于使进入的风进行混合,提高干燥效率。
所述污泥干燥区内设置有均风板,用于时干燥风能够均匀的分布于污泥干燥区内。
与现有技术相比,本实用新型有如下优点:节能性好:采用低温余热(95 ℃以下)进行干化,每蒸发一吨水耗电量仅70kw.h;安全性高:低温(48-80℃) 全封闭干化工艺,抑制挥发性气体挥发,可安全运行;适用性强:可满足含水率从50~83%污泥污泥干化,可将含水率83%泥饼一次干燥成为含水10%污泥颗粒;采用连续网带干燥模式,不受污泥黏糊区的影响,适合各类型污泥干化系统(包括含砂量大污泥),易损件少,易维护,使用寿命长;环保性好:无尾气排放,无需臭气处理系统;整个干化过程可都在密闭环境条件下进行,不会有气体排到外界环境中,不会造成二次环境污染。







