申请日2015.08.20
公开(公告)日2016.01.13
IPC分类号C02F9/14; C02F11/12; C02F103/28
摘要
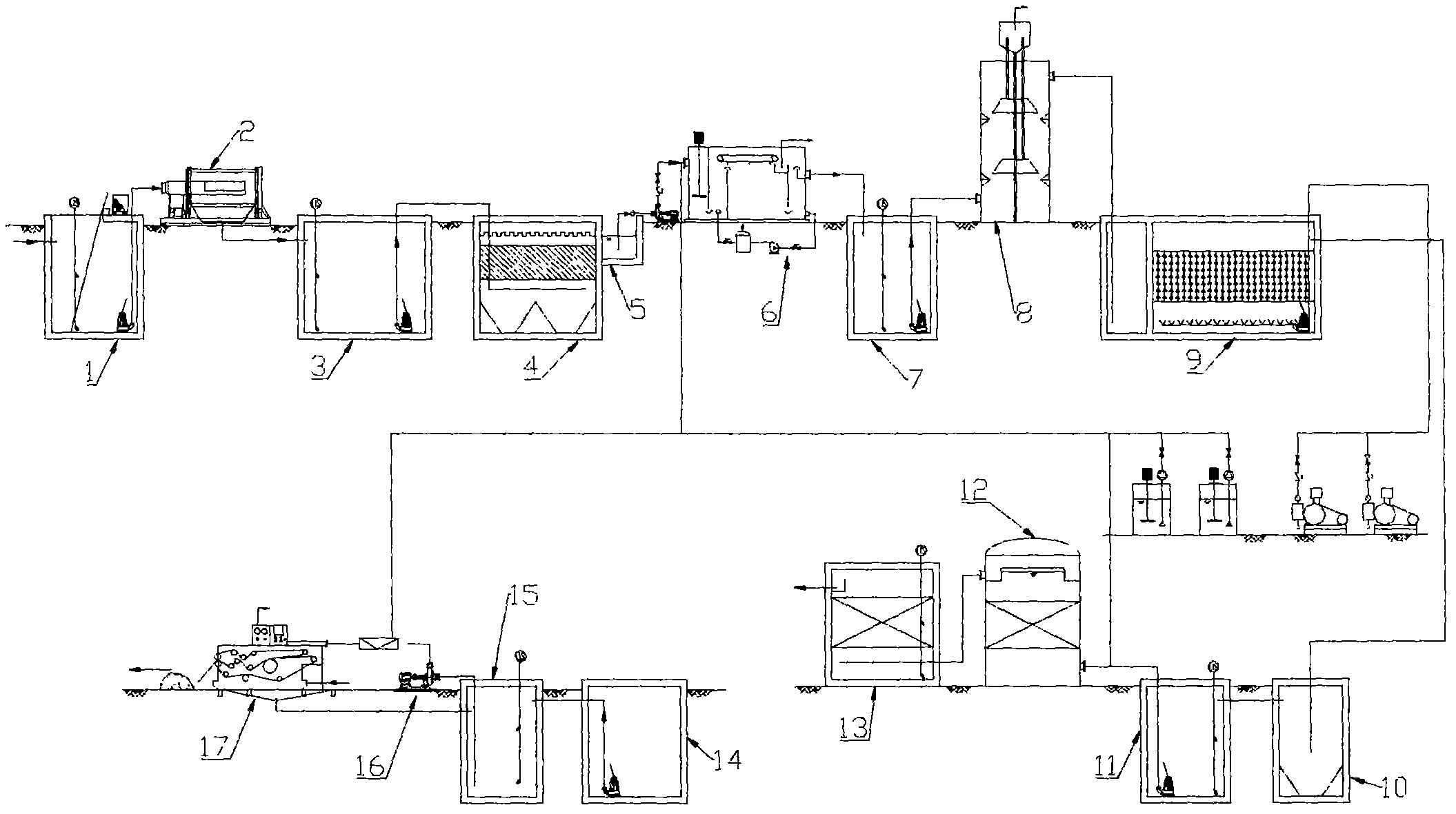
本实用新型公开了一种造纸行业专有废水处理装置,包括格栅井、微滤机、均质调节池、斜管沉淀池、集水井、混凝气浮机、缓冲水池、高效厌氧反应器、生物除磷系统、二沉池、中间水池、絮凝反应罐、滤池、污泥贮存池、污泥浓缩池、污泥泵和带式压滤机。该装置工艺设计合理、系统稳定,出水达标,产生的颗粒污泥会带来效益能有效降解水中致色物质、去除水中有机物的,污水可生化性好,运行成本低。
权利要求书
1.一种造纸行业专有废水处理装置,其特征在于,包括格栅井、微滤机、均质调节池、斜管沉淀池、集水井、混凝气浮机、缓冲水池、高效厌氧反应器、生物除磷系统、二沉池、中间水池、絮凝反应罐、滤池、污泥贮存池、污泥浓缩池、污泥泵和带式压滤机;所述格栅井的进口连接污水进水管,格栅井内的提升泵出口连接微滤机的进口,均质调节池的进口连接微滤机的出口,均质调节池内提升泵通过管道连接斜管沉淀池的进口,斜管沉淀池的出口与集水井的进口相连,混凝气浮机外置增压泵的进水管直接连接至集水井的池底,混凝气浮机外置增压泵的出水口通过管道与混凝气浮机的进水口相连,混凝气浮机的出口连接缓冲水池的进口;高效厌氧反应器的进口与缓冲水池内的提升泵相连,出口连接生物除磷系统进水口,二沉池的进水口通过管道连接生物除磷系统的出水口,二沉池的出水口通过管道与中间水池的进水口相连,絮凝反应罐的进口通过管道与中间水池内的提升泵相连,絮凝反应罐的出口连接滤池的进口;所述斜管沉淀池的静压排泥口、混凝气浮机的排空口、高效厌氧反应器排泥口、二沉池的排泥口和絮凝反应罐的排泥口通过管道汇集进入污泥贮存池的进口,污泥浓缩池的进口连接污泥贮存池内污泥泵的出口,污泥浓缩池上清液回流口通过管道连接格栅井的进口;污泥浓缩池的出口连接污泥泵的进口,带式压滤机的进料泵进口通过管道混合器与污泥泵的出口连接。
2.根据权利要求1所述的造纸行业专有废水处理装置,其特征在于,所述格栅井内安装有机械格栅和提升泵。
3.根据权利要求1所述的造纸行业专有废水处理装置,其特征在于,所述微滤机内安装有滤网、滤筛和传动装置,微孔筛网固定在转鼓型过滤设备上。
4.根据权利要求1所述的造纸行业专有废水处理装置,其特征在于,所述斜管沉淀池为平流式,由沉淀区、布水区、污泥区组成;斜管之间间距一般不小于50mm,斜管长一般在1.0-1.2m左右;斜管的上层应有0.5-1.0m的水深,底部缓冲层高度为1.0m。斜管下为废水分布区,一般高度不小于0.5m,布水区下部为污泥区,污泥区设置静压排泥口,排泥口通过阀门和管道与污泥贮存池进口连接。
5.根据权利要求1所述的造纸行业专有废水处理装置,其特征在于,混凝气浮机集进水、混凝、分离、集水、出水于一体,主要有三大系统组成:溶气系统、刮渣系统、电控系统,混凝气浮机上部设置有出水口、排渣口,中部设置有回流口,下部设置有进水口、三个排空口,排空口通过阀门和管道与污泥贮池进口连接;内部结构设计有稳流室、分离室、反映室、溶气释放室,稳流室内有折板,溶气释放室与分离室于一个槽体,中间隔开。
6.根据权利要求1所述的造纸行业专有废水处理装置,其特征在于,所述高效厌氧反应器本体为两个圆柱形罐体结构的组合,主罐反应室由一级三相分离器、二级三相分离器分隔为三部分,分别是流化床反应室、深度净化反应室和沉淀区,反应室中部和上部的三相分离器、反应室上部和反应器顶部的气液分离器通过固定支架与本体连接固定,三相分离器上部有沼气收集管和沼气提升管;气液分离器上连接有沼气提升管、沼气排放管和外循环回流管,反应室上部的钢、不锈钢或钢砼制的环形出水堰固定在本体上,环形出水堰上安装出水管;反应室下部安装有排泥管,通过阀门和管道与污泥贮池进口连接,反应室底部安装有进水管,反应室内底布置有进水布水管和外循环布水管;反应器部分出水作为外循环水在混合罐内与主反应罐产生的气体混合后通过外部循环提升泵进入主反应器内。
7.根据权利要求1所述的造纸行业专有废水处理装置,其特征在于,所述生物除磷系统设计有进水口、出水堰口、排空口、污泥回流口和混合液回流口,进气口,系统内部安装有混合液回流泵、污泥回流泵、潜水推流机、启闭机、矩阵曝气;系统外置鼓风机,风机的风管与生物除磷系统的进气口相连。
8.根据权利要求1所述的造纸行业专有废水处理装置,其特征在于,所述二沉池为斜板沉淀池,设有进水口、出水口、静压排泥口,静压排泥口通过阀门和管道与污泥贮存池进口连接。
9.根据权利要求1所述的造纸行业专有废水处理装置,其特征在于,所述絮凝反应罐外置两套加药装置,加药装置由搅拌机、加药箱和计量泵组成,分别为PAC和PAM。
10.根据权利要求1所述的造纸行业专有废水处理装置,其特征在于,所述滤池内部结构设计有布水系统、承托层、滤头、气水反冲洗系统、风机、拦料栅,池体外设有进水口、出水口、气管口以及反洗管路,滤池内滤料采用活性炭滤料和陶粒滤料。
说明书
一种造纸行业专有废水处理装置
技术领域
本实用新型涉及一种废水处理装置,具体是一种造纸行业专有废水处理装置。
背景技术
废纸造纸是以废板纸、废报纸、废书刊纸等为主要原料,生产多种规格的白板纸、箱板纸、瓦楞纸等产品。造纸废水排放量与多种因素有关,目前我国以中小型企业居多,吨纸排水量一般在100~200立方米/t,最低已达到22立方米/t,最高超过250立方米/t。一般,企业规模越大、设备越先进、商品浆比例越高、管理越完善,吨纸排水量也就越低。在同等条件下,高档纸吨产品排水量要高于低档纸吨产品排水量。废水水质浓度一般与吨纸排水量及污染物产生量有关,通常造纸废水的COD(化学需氧量)在5000~15000mg/L范围,废纸造纸废水中主要含有半纤维素、木质素、无机酸盐、细小纤维、无机填料以及油墨、染料等污染物。木质素、半纤维素主要形成废水的COD;细小纤维、无机填料等主要形成SS(固体悬浮物浓度);油墨、染料等主要形成色度及COD。这些污染物综合反映出废水的SS、COD指标均较高。COD则由非溶解性COD和溶解性COD两部分组成,通常非溶解性COD占COD组成总量的大部分,当废水中SS被去除时,绝大部分非溶解性COD同时被去除。因此,废纸造纸废水处理要解决的主要问题是去除SS和COD。
实用新型内容
本实用新型的目的在于提供一种造纸行业专有废水处理装置,以解决上述背景技术中提出的问题。
为实现上述目的,本实用新型提供如下技术方案:
一种造纸行业专有废水处理装置,包括格栅井、微滤机、均质调节池、斜管沉淀池、集水井、混凝气浮机、缓冲水池、高效厌氧反应器、生物除磷系统、二沉池、中间水池、絮凝反应罐、滤池、污泥贮存池、污泥浓缩池、污泥泵和带式压滤机。所述格栅井的进口连接污水进水管,格栅井内的提升泵出口连接微滤机的进口,均质调节池的进口连接微滤机的出口,均质调节池内提升泵通过管道连接斜管沉淀池的进口,斜管沉淀池的出口与集水井的进口相连,混凝气浮机外置增压泵的进水管直接连接至集水井的池底,混凝气浮机外置增压泵的出水口通过管道与混凝气浮机的进水口相连,混凝气浮机的出口连接缓冲水池的进口;高效厌氧反应器的进口与缓冲水池内的提升泵相连,出口连接生物除磷系统进水口,二沉池的进水口通过管道连接生物除磷系统的出水口,二沉池的出水口通过管道与中间水池的进水口相连,絮凝反应罐的进口通过管道与中间水池内的提升泵相连,絮凝反应罐的出口连接滤池的进口;所述斜管沉淀池的静压排泥口、混凝气浮机的排空口、高效厌氧反应器排泥口、二沉池的排泥口和絮凝反应罐的排泥口通过管道汇集进入污泥贮存池的进口,污泥浓缩池的进口连接污泥贮存池内污泥泵的出口,污泥浓缩池上清液回流口通过管道连接格栅井的进口;污泥浓缩池的出口连接污泥泵的进口,带式压滤机的进料泵进口通过管道混合器与污泥泵的出口连接。
作为本实用新型进一步的方案:所述格栅井内安装有机械格栅和提升泵。
作为本实用新型进一步的方案:所述微滤机内安装有滤网、滤筛和传动装置,微孔筛网固定在转鼓型过滤设备上。
作为本实用新型进一步的方案:所述斜管沉淀池为平流式,由沉淀区、布水区、污泥区组成;斜管之间间距一般不小于50mm,斜管长一般在1.0-1.2m左右;斜管的上层应有 0.5-1.0m的水深,底部缓冲层高度为1.0m。斜管下为废水分布区,一般高度不小于0.5m,布水区下部为污泥区,污泥区设置静压排泥口,排泥口通过阀门和管道与污泥贮存池进口连接。
作为本实用新型进一步的方案:混凝气浮机集进水、混凝、分离、集水、出水于一体,主要有三大系统组成:溶气系统、刮渣系统、电控系统,混凝气浮机上部设置有出水口、排渣口,中部设置有回流口,下部设置有进水口、三个排空口,排空口通过阀门和管道与污泥贮池进口连接;内部结构设计有稳流室、分离室、反映室、溶气释放室,稳流室内有折板,溶气释放室与分离室于一个槽体,中间隔开。
作为本实用新型进一步的方案:所述高效厌氧反应器本体为两个圆柱形罐体结构的组合,主罐反应室由一级三相分离器、二级三相分离器分隔为三部分,分别是流化床反应室、深度净化反应室和沉淀区,反应室中部和上部的三相分离器、反应室上部和反应器顶部的气液分离器通过固定支架与本体连接固定,三相分离器上部有沼气收集管和沼气提升管;气液分离器上连接有沼气提升管、沼气排放管和外循环回流管,反应室上部的钢、不锈钢或钢砼制的环形出水堰固定在本体上,环形出水堰上安装出水管;反应室下部安装有排泥管,通过阀门和管道与污泥贮池进口连接,反应室底部安装有进水管,反应室内底布置有进水布水管和外循环布水管;反应器部分出水作为外循环水在混合罐内与主反应罐产生的气体混合后通过外部循环提升泵进入主反应器内。
作为本实用新型进一步的方案:所述生物除磷系统设计有进水口、出水堰口、排空口、污泥回流口和混合液回流口,进气口,系统内部安装有混合液回流泵、污泥回流泵、潜水推流机、启闭机、矩阵曝气;系统外置鼓风机,风机的风管与生物除磷系统的进气口相连。
作为本实用新型进一步的方案:所述二沉池为斜板沉淀池,设有进水口、出水口、静压排泥口,静压排泥口通过阀门和管道与污泥贮存池进口连接。
作为本实用新型进一步的方案:所述絮凝反应罐外置两套加药装置,加药装置由搅拌机、加药箱和计量泵组成,分别为PAC和PAM。
作为本实用新型进一步的方案:所述滤池内部结构设计有布水系统、承托层、滤头、气水反冲洗系统、风机、拦料栅,池体外设有进水口、出水口、气管口以及反洗管路,滤池内滤料采用活性炭滤料和陶粒滤料。
与现有技术相比,本实用新型的有益效果是:该装置工艺设计合理、系统稳定,出水达标,产生的颗粒污泥会带来效益能有效降解水中致色物质、去除水中有机物的,污水可生化性好,运行成本低。







