公布日:2023.09.12
申请日:2022.03.04
分类号:B01D21/00(2006.01)I;B01D21/02(2006.01)I;B01D21/24(2006.01)I
摘要
本发明公开了一种沉淀池高效排泥联锁自动化系统,包括固定在沉淀池刮泥机行车上的沉淀池排泥自吸泵,所述排泥自吸泵连接有排泥管道,第一排泥管道固定在刮泥机行车上,污泥暂存池中设有第一液位计,所述污泥暂存池中有污泥泵,所述污泥泵与污泥池通过第二排泥管道相连,该排泥自动化系统逻辑清晰、操作简单、维护安装方便、自动化程度高、能耗低、适应性强、体积小、成本小。

权利要求书
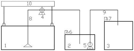
1.一种沉淀池高效排泥联锁自动化系统,其特征在于:包括固定在沉淀池刮泥机行车上(10)的沉淀池排泥自吸泵(4),所述排泥自吸泵(4)连接有排泥管道(8),第一排泥管道(8)固定在刮泥机行车(10)上,污泥暂存池(2)中设有第一液位计(6),所述污泥暂存池(2)中有污泥泵(5),所述污泥泵(5)与污泥池(3)通过第二排泥管道(9)相连,所述污泥池(3)中有第二液位计(7),所述排泥自吸泵(4)、污泥泵(5)、第一液位计(6)和第二液位计(7)均与外部集中控制系统相连。
2.如权利要求1所述的一种沉淀池高效排泥联锁自动化系统,其特征在于:所述沉淀池排泥自吸泵(4)与刮泥机行车(10)通过铁链连接在一起。
3.如权利要求1所述的一种沉淀池高效排泥联锁自动化系统,其特征在于:所述排泥自吸泵(4)与第一排泥管道(8)通过钢管连接。
4.如权利要求1所述的一种沉淀池高效排泥联锁自动化系统,其特征在于:所述第一排泥管道(8)与所述刮泥机行车(10)通过焊接或打孔设卡固定。
5.如权利要求1所述的一种沉淀池高效排泥联锁自动化系统,其特征在于:所述污泥泵(5)与所述污泥池(3)通过铁管或者PVC管道相连。
6.如权利要求1所述的一种沉淀池高效排泥联锁自动化系统,其特征在于:所述排泥自吸泵(4)、污泥泵(5)、第一液位计(6)、第二液位计(7)均通过信号控制线与外部集中控制系统连接。
7.如权利要求1所述的一种沉淀池高效排泥联锁自动化系统,其特征在于:所述第一排泥管道(8)的底部固定连接有滤网。
发明内容
针对上述存在的技术不足,本发明的目的是提供一种成本小,操作方便,排泥高效的沉淀池高效排泥联锁系统,能有效减少人力资源,提高排泥自动化程度。
为解决上述技术问题,本发明采用如下技术方案:本发明提供一种沉淀池高效排泥联锁系统,包括固定在沉淀池刮泥机行车上的沉淀池排泥自吸泵,所述排泥自吸泵连接有排泥管道,第一排泥管道固定在刮泥机行车上,污泥暂存池中设有第一液位计,所述污泥暂存池中有污泥泵,所述污泥泵与污泥池通过第二排泥管道相连,所述污泥池中有第二液位计,所述排泥自吸泵、污泥泵、第一液位计和第二液位计均与外部集中控制系统相连。
优选地,所述沉淀池排泥自吸泵与刮泥机行车通过铁链连接在一起。
优选地,所述排泥自吸泵与第一排泥管道通过钢管连接。
优选地,所述第一排泥管道与所述刮泥机行车通过焊接或打孔设卡固定。
优选地,所述第二排泥管道为铁管或者PVC管道相连。
优选地,所述排泥自吸泵、污泥泵、第一液位计、第二液位计均通过信号控制线与外部集中控制系统连接。
优选地,所述第一排泥管道的底部固定连接有滤网。
本发明的有益效果在于:本沉淀池高效排泥联锁系统,能够随时随地进行排泥,不受时间天气限制;本排泥系统更高效,节约人工成本,可远程操作,且操作简单便捷;本排泥自动化系统逻辑清晰、操作简单、维护安装方便、自动化程度高、能耗低、适应性强、体积小、成本小。
(发明人:李丰登;孙长城;马杰;周东升)






