申请日2016.05.27
公开(公告)日2016.12.21
IPC分类号C02F9/14; C02F103/32
摘要
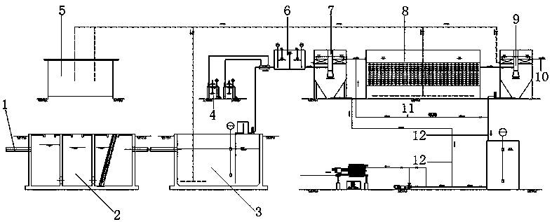
本实用新型公开了一种适用于食品厂的污水处理系统,包括进水管,所述进水管连接隔油池,所述隔油池通过管道连接调节池,所述调节池通过管道连接混凝沉淀池,所述调节池与混凝沉淀池之间的管道设置混凝反应器,所述混凝反应器通过管道连接加药装置,所述混凝沉淀池通过管道连接好氧生化池,所述好氧生化池通过管道连接二次沉淀池,所述二次沉淀池上设置达标排放口。本实用新型提供的一种适用于食品厂的污水处理系统,食品厂污水通过进水管进入隔油池,之后进入调节池,加药处理后在混凝沉淀池内沉淀,之后经过好氧生化池处理,最后经过二次沉淀池处理后达标排出。
摘要附图
权利要求书
1.一种适用于食品厂的污水处理系统,其特征在于:包括进水管,所述进水管连接隔油池,所述隔油池通过管道连接调节池,所述调节池通过管道连接混凝沉淀池,所述调节池与混凝沉淀池之间的管道设置混凝反应器,所述混凝反应器通过管道连接加药装置,所述混凝沉淀池通过管道连接好氧生化池,所述好氧生化池通过管道连接二次沉淀池,所述二次沉淀池上设置达标排放口。
2.如权利要求1所述的一种适用于食品厂的污水处理系统,其特征在于:所述隔油池内设置数个格栅。
3.如权利要求2所述的一种适用于食品厂的污水处理系统,其特征在于:还包括一回转鼓风机,所述回转鼓风机通过管道连接调节池和二次沉淀池。
4.如权利要求3所述的一种适用于食品厂的污水处理系统,其特征在于:所述好氧生化池和二次沉淀池的下方设置污泥回流管。
5.如权利要求4所述的一种适用于食品厂的污水处理系统,其特征在于:所述混凝沉淀池和二次沉淀池的下方设置滤液回流管,所述滤液回流管连接调节池。
说明书
一种适用于食品厂的污水处理系统
技术领域
本实用新型涉及污水处理系统,尤其涉及一种适用于食品厂的污水处理系统。
背景技术
食品厂的排水需要净化处理,现有技术中缺少规范的食品厂排水处理体系,本实用新型提出了一种适用于食品厂的污水处理系统,在水处理过程中,原水经过一系列的处理后得到排放达标水,可排放到河道,也可用于灌溉,不会造成水资源的浪费。
实用新型内容
本实用新型的目的在于提供一种适用于食品厂的污水处理系统,具体结构为:
包括进水管,所述进水管连接隔油池,所述隔油池通过管道连接调节池,所述调节池通过管道连接混凝沉淀池,所述调节池与混凝沉淀池之间的管道设置混凝反应器,所述混凝反应器通过管道连接加药装置,所述混凝沉淀池通过管道连接好氧生化池,所述好氧生化池通过管道连接二次沉淀池,所述二次沉淀池上设置达标排放口。
上述的一种适用于食品厂的污水处理系统,其中:所述隔油池内设置数个格栅。
上述的一种适用于食品厂的污水处理系统,其中:还包括一回转鼓风机,所述回转鼓风机通过管道连接调节池和二次沉淀池。
上述的一种适用于食品厂的污水处理系统,其中:所述好氧生化池和二次沉淀池的下方设置污泥回流管。
上述的一种适用于食品厂的污水处理系统,其中:所述混凝沉淀池和二次沉淀池的下方设置滤液回流管,所述滤液回流管连接调节池。
本实用新型相对于现有技术具有如下有益效果:
本实用新型提供的一种适用于食品厂的污水处理系统,食品厂污水通过进水管进入隔油池,实现隔油处理,之后污水进入调节池、加药处理后在混凝沉淀池内沉淀,之后经过好氧生化池处理,最后经过二次沉淀池沉淀处理后达标排出。


